











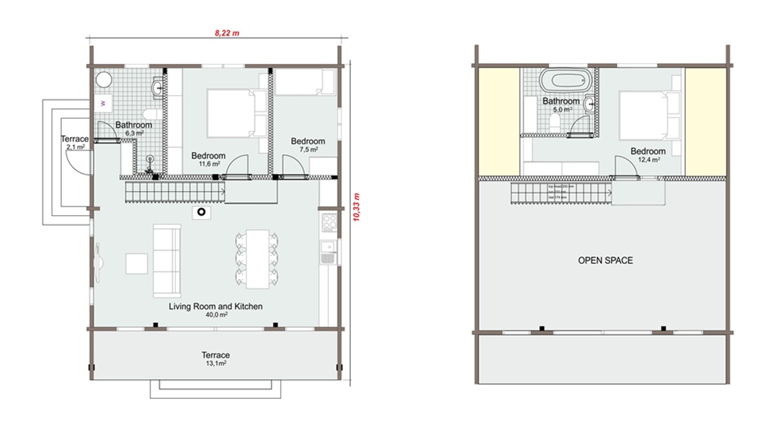
Bruto 104,46 m² Neto 90,40 m2
SIRIUS 90, Vanjski zid: MLL134 (debljina 134 mm), sve cijene sadrže uračunat PDV
KLJUČ U RUKE
– Honka vanjski zidovi MLL134N
– Honka unutarnji pregradni zidovi završno obrađeni
– Prozori trostruko staklo punjeno argonom
– Ulazna vrata HONKA
– Unutarnja sobna vrata puni bor HONKA
– Krovna konstrukcija po projektu
– Termo izolacija krova s donje strane
– Podšiv stropa od brodskog poda
– Krovni pokrivač crijep
– Građevinska limarija
– Inox dimnjak
– Stepenište i ograda custom jela/smreka
– Montaža elemenata kuće
– Završni premaz kuće izvana u tri sloja Tikurilla lazurom
– Elektro instalacije, razvodni ormari, utičnice, prekidači
– Kanalizacija i vodovod unutar zidova
– Podovi unutar kuće panel parket po projektu
– Keramičke pločice po projektu
Cijena Ključ u Ruke 179.730,00 € (1997 €/m2)
NISKI ROH BAU
– Honka vanjski zidovi MLL134N
– Honka unutarnji pregradni zidovi
– Krovna konstrukcija
– Krovni pokrivač crijep
– Građevinska limarija
– Pripremljeni prolazi za elektro instalacije
– Transport iz Finske
– Montaža elemenata kuće
Cijena Honka kit 107.280,00 € (1192€/m2)
VISOKI ROH BAU
– Honka vanjski zidovi MLL134N
– Honka unutarnji pregradni zidovi
– Prozori i ulazna vrata
– Krovna konstrukcija
– Krovni pokrivač crijep
– Građevinska limarija
– Pripremljeni prolazi za elektro instalacije
– Transport iz Finske
– Montaža elemenata kuće
– Završni premaz kuće izvana
u tri sloja Tikurilla premazima
Cijena Visoki Roh Bau 139.410,00 € (1549€/m2)
Ponuda ne obuhvaća: Izradu temelja i glavni projekt za dobivanje građevinske dozvole.
Sanitarije, peć i rasvjetna tijela nisu uključeni u cijenu jer ih smatramo dekorom i kupcu prepuštamo izbor i nabavu.
Montaža sanitarija je uračunata u cijenu.
Napomena: Navedene cijene vrijede za maksimalnu udaljenost montaže do 30 km od Zagreba. Za veće udaljenosti koje zahtijevaju smještaj i terenski rad montažera, obračunavaju se realni dodatni troškovi montaže. Izrada temelja, glavni projekt, sanitarije, toplinska pumpa, solarne ćelije, alarm, daljinska upravljanja pojedinim elementim elektronike i grijanja, mogu na zahtjev Investitora biti obuhvaćeni našom ponudom. U tom slučaju moramo slijediti redoslijed prikupljanja dokumentacije, odnosno, ponude za sve navedene radove možemo dati nakon što imamo izrađen glavni projekt sa troškovnicima po kojima možemo izraditi konkretnu i detaljnu ponudu.